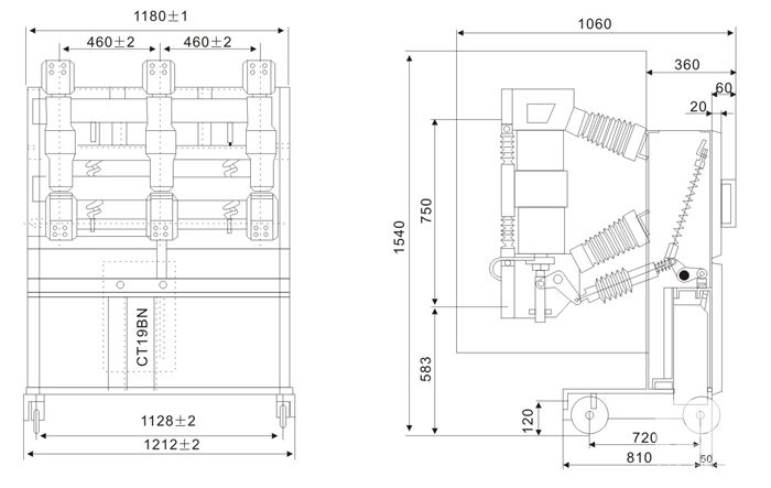
ZN23-40 5KV 1250-31 5户内高压真空断路器户内高压真空断路器是三相交流50Hz,额定电压为40 5kV的户内装置,配有CT19弹簧操动机构。产品分为固定式和手车式两种。固定式是配置XGN17-40 5箱式固定式高压开关柜中使用;
一、产品介绍
ZN23-40.5KV/1250-31.5户内高压真空断路器,户内高压真空断路器是三相交流50Hz,额定电压为40.5kV的户内装置,配有CT19弹簧操动机构。产品分为固定式和手车式两种。固定式是配置XGN17-40.5箱式固定式高压开关柜中使用;手车式配置在JYN1-40.5手车上在JYN-40.5移开式金属封闭开关柜或GBC高压开关柜中使用,也可配置在KYN10-40.5手车上在KYN10-40.5组装式金属封闭开关柜中使用。
ZN23-40.5KV/1250-31.5户内高压真空断路器技术参数高、开断能力强、动作可靠、性能稳定、寿命长、维护简便,且无爆炸危险及污染,供工矿企业,发电厂及变电站控制之用,并适用于频繁操作的场所,也可用于切合电容器组等特殊场合。

ZN23-40.5KV/1250-31.5户内高压真空断路器额定电压40.5kV,三相交流50Hz的户内高压电器设备,适用于工矿企业,变电站等输配电丝毫,作控制和保护开关,尤其适用于冶金、电弧炼钢等需频繁操作的行业,作为控制和保护设备。
ZN23-40.5kv/1250A-31.5户内高压真空断路器参数表:
|
名称 |
单位 |
参数 |
|||
|
额定电压 |
kV |
|
|||
|
额定电流 |
A |
630,1000,1250 |
1250,1600 |
1250,1600,2000,25000 |
1600,2500,3150 |
|
额定短路开断电流 |
kA |
20 |
25 |
31.5 |
40 |
|
额定短路关合电流 |
kA |
50 |
63 |
80 |
100 |
|
额定动稳电流(峰值) |
kA |
50 |
63 |
80 |
100 |
|
额定热稳定电流(有效值) |
kA |
20 |
25 |
31.5 |
40 |
|
额定热稳定时间 |
s |
4 |
|||
|
额定短路开断电流开断次数 |
次 |
30(50) |
|||
|
全开断时间CDI0电磁操动机构 |
mS |
<80 |
|||
|
额定操作顺序 |
|
0.3 |
|||
|
一分钟工频耐压(有效值) |
kV |
对地相间42,断口48 |
|||
|
雷电冲击耐压 |
kV |
对地相间75,断口85 |
|||
|
机械寿命 |
次 |
10000 |
|||
|
额定电容器组开断电流 |
A |
630 |
|||
|
储能电机额定功率 |
W |
275 |
|||
|
储能电动机额定电压 |
V |
AC/DC220.110 |
|||
|
储能时间 |
S |
<15 |
|||
|
合分闸电磁额定电压 |
V |
AC/DC220.110 |
|||
|
过流脱扣器额定电流 |
A |
5 |
|||
|
辅助开关额定电流 |
A |
10 |
|||